发表时间: 2026-04-01 15:34:06
作者: 石油化工设备维护与检修网
浏览: 152
近日消息,天津高新区官网发布《关于中海油能源发展股份有限公司海油发展渤龙湖科研中试基地建设项目(一期)环境影响评价受理信息公示》,项目重点情况概览。


01丨项目由来
中海油能源发展股份有限公司(以下简称建设单位)是中国海洋石油集团有限公司(以下称集团公司)的下属子公司,聚焦海上、陆上油气生产领域,致力于发展成为以提高油气田采收率、装备制造与运维、FPSO一体化服务等为主导产业的有中国特色的世界一流能源技术服务公司。建设单位为油气公司提供包括工程技术服务、装备设计制造与运维服务、油气田生产一体化服务等在内的全方位技术服务,并聚焦油气田生产阶段,从提高油田采收率、监督监理、油田作业支持、非常规油气一体化服务、设备设施运维一体化服务、FPSO生产运营服务等多个方面为海上和陆上油气公司的生产作业提供技术服务和支持保障。
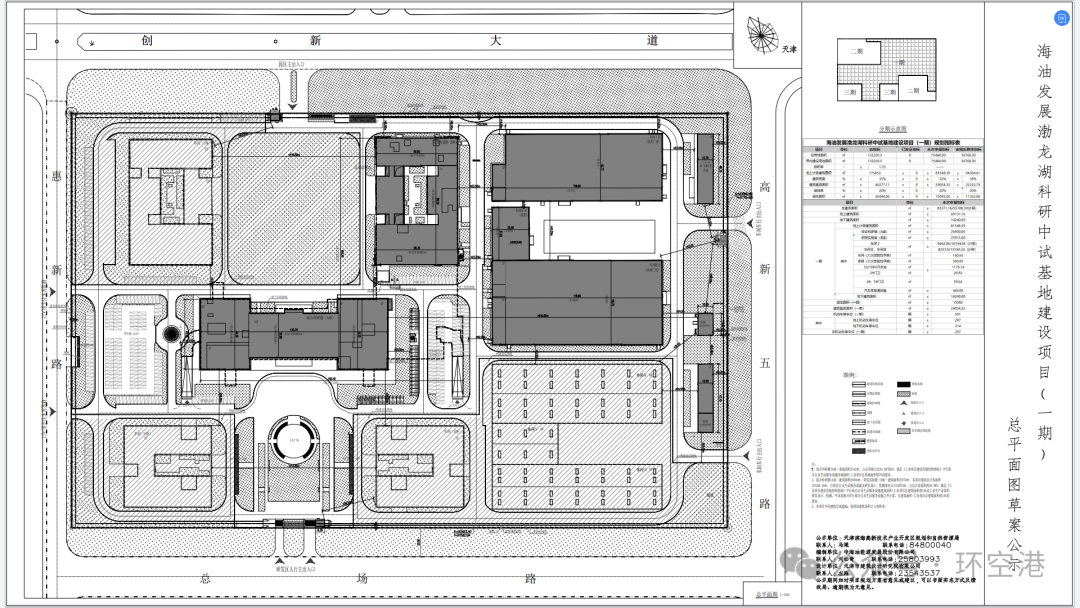
根据海油发展“十四五”京津冀区域发展规划,依托区域产业资源及自贸区政策配套优势,打造渤海地区“一中心、四基地”总体布局,结合渤海矿区现状及优化升级方案,建设公司技术研发、成果转化一体化科研中试基地,为此,建设单位拟在天津滨海高新技术产业开发区渤龙湖科技园创新大道南侧、高新五路西侧地块建设“海油发展渤龙湖科研中试基地建设项目(一期)”。
中试基地功能定位为油气开采流程原型试验中试基地,中试试验均为物理试验,配套建设科研、实验、办公等设施,项目涉及的所有实验均为小试规模,主要进行钻完修技术服务、提高采收率技术服务、油田研究技术服务、油田生产一体化服务等方向的研究,用于满足稠油热采、低渗开发、高温高压、深水深层等难开发重点领域勘探开发关键核心技术研究。
02丨建设地点
建设项目拟建址位于天津滨海高新技术产业开发区渤龙湖科技园创新大道南侧、高新五路西侧;厂区东侧为高新五路,西侧为惠新路、天津壹科环保科技有限公司,南侧为规划路,北侧为创新大道。
03丨建设内容
本项目主体工程内容为新建研发实验楼(B座)1座、车间(腐蚀防护评价实验室)1座、综合科研楼(A 座)1座、车间3座(包括车间Ⅰ、车间Ⅱ、车间Ⅲ)。项目占地面积75460㎡,总建筑面积83371.16㎡。
04丨投资总额
78586万元
05丨计划工期
15个月
06丨劳动定员
1)项目定员:本项目定员996人。
2)工作制度:每天工作8小时,年工作日250天。本项目大部分实验及中试试验设备只在昼间运行,部分实验及试验设备涉及夜间运行。
来源:超级石化